Beuk 4, 5731 NH Mierlo
Rustig en sfeervol wonen op ruim zonnig hoekperceel zijn een van de speerpunten van deze fijne vrijstaand geschakelde “Zaanse” woning
Rustig en sfeervol wonen op ruim zonnig hoekperceel zijn een van de speerpunten van deze fijne vrijstaand geschakelde “Zaanse” woning. Onderhoudsvriendelijk afgewerkt met keralit gevelbekleding en deels kunststof kozijnen met geluidwerende HR++ beglazing. Speelse en ruimtelijke indeling met o.a. moderne keuken, aangebouwde serre, zonnepanelen en 3 slaapkamers. Fraaie rondom aangelegde tuin met berging, royale overkapping en carport met eigen parkeergelegenheid. Gelegen op een aantrekkelijke en unieke woonlocatie met meerdere woningen in Zaanse stijl die je doen denken aan een kleinschalig vakantiepark. Een bijzondere woning die je beslist van binnen moet zien!
De voormalige garage is naast een sauna voorzien van een extra douchegelegenheid. De woning kan hier levensloopbestendig gemaakt worden door bijvoorbeeld het creëren van een extra slaapkamer. De gezellige dorpskern van Mierlo ligt op loopafstand en voor een wandeling ben je zo in het nabij gelegen natuurgebied Sang en Goorkens. Centrale ligging tussen Geldrop en Helmond met goede uitvalswegen.
Nieuwsgierig geworden? Plan snel een afspraak en laat je verrassen door deze leuke woning!
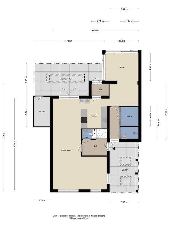
Begane grond
Aangelegde voortuin met royale oprit en carport voor het stallen van een auto op eigen terrein. Door de aanwezigheid van zonnepanelen is hier een oplaadpunt voor de auto aangelegd.
Entree/hal: Overdekte entree. Ontvangsthal met meterkast en trapopgang naar de eerste verdieping. Modern toilet met wandcloset en fonteintje.
Living: Zodra je de living binnen komt, ervaar je direct de ruimtelijkheid en de prettige lichtinval die deze ruimte uitstraalt. Fraai uitzicht over de achtertuin met heerlijk overdekt terras welke toegankelijk is via 2 openslaande tuindeuren. De voorzijde kijkt vrij uit over de straat en op koude winterdagen creëer je hier warme gezelligheid rondom de aanwezige gashaard. Wandafwerking met spachtelputz en tegelvloer met vloerverwarming.
Keuken: Open keuken aan de achterzijde in moderne dubbele opstelling met airco. Hier bereid je een lekkere maaltijd op het kookeiland en zorgen de extra kastenwand en granieten werkbladen voor voldoende werk- en opbergruimte. De inrichting is van 2002 en voorzien van een lichte neutrale kleurstelling.
De keuken is uitgerust met de volgende inbouwapparatuur:
- Inductiekookplaat
- RVS afzuigkap
- Koelkast
- Vriezer
- Magnetron (defect)
- Oven (zonder stekker)
Portaal met toegang naar de tuin. Hier bevindt zich de CV-ketel (Remeha 2017) en de aansluiting voor de vaatwasser.
Serre: Fijne lichte aangebouwde aluminium serre (ca. 2006) met elektrisch bedienbare screen, vloerverwarming en dubbele schuifpui. Deze ruimte is multifunctioneel te gebruiken en kijkt fraai weg over de zonnige achtertuin.
Sauna en doucheruimte: De voormalige garage is hier omgebouwd tot ontspanruimte. Na een lange werkdag kun je hier bijkomen in de heerlijke sauna en nadien opfrissen in de betegelde doucheruimte welke is voorzien van een inloopdouche en wastafel. Royale wandkast voor het opbergen van veel spullen en loopdeur naar de oprit.
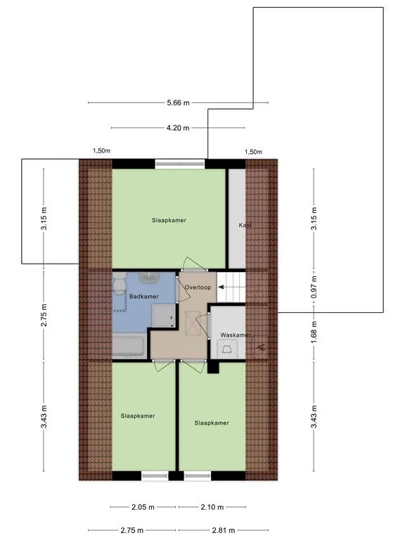
Eerste verdieping
Overloop met airco en toegang tot drie slaapkamers, badkamer en de berging. Middels een vlizotrap kun je vanaf hier naar de bergzolder.
Slaapkamers: Slaapkamer 1, aan de achterzijde gelegen, met praktische kastenwand. Slaapkamers 2 en 3 liggen aan de voorzijde en zijn allen voorzien van gestucte wanden/plafonds en laminaatvloeren.
Badkamer: Betegelde badkamer in standaard kleurstelling met houten dakvenster. Douchecabine met thermostaatkraan en ligbad. Een staand 2e toilet, badmeubel en handdoekradiator maken het geheel compleet.
Berging: Bergruimte met aansluiting voor de wasapparatuur en omvormer voor de zonnepanelen.
BERGZOLDER:
Ruime bergzolder op stahoogte. Twee ramen zorgen voor goed daglicht en de nodige ventilatie. Ideale ruimte voor opslag of het uitoefenen van een hobby.
Buiten
Tuin: Fraai aangelegde tuin met diverse terrassen waar je op elk moment van de dag kunt genieten van zowel een plekje in de zon als de schaduw. Fraaie vijverpartij. De tuin heeft een eigen poort zodat je vanuit de tuin de straat goed kunt bereiken.
Berging: Aangebouwde berging (2011) aan de zijkant van de woning, ideaal om je fiets te stallen of het opbergen van je tuinspullen.
Overkapping: Luxe overkapping met geïsoleerd dak voorzien van lichtstraat en inbouwspots. Elektrisch bedienbare screen en fraaie hardstenen betegeling.
Omgeving: Gelegen in rustige kindvriendelijke woonomgeving nabij diverse scholen, natuurgebied, dorpskern en goede uitvalswegen richting Geldrop, Helmond, Eindhoven en snelwegen. Voldoende parkeergelegenheden in de directe omgeving.
Algemeen
- Woning voorzien van alle isolatie voorzieningen
- Deels v.v. kunststof kozijnen met HR++ beglazing
- Onderhoudsvriendelijke Keralit gevelbekleding
- 2 badkamers, sauna en 3 slaapkamers
- Luxe serre (ca. 2006) en overkapping (ca. 2011)
- HR-ketel (Remeha 2017)
- Airco’s
- Zonnepanelen (2021, 7 stuks)
- Aangebouwde carport en aanpandige berging (2011)
- Aangelegde tuin met vijverpartij
- Vrije achterom
- Voldoende parkeergelegenheid
- Royaal perceel van 324 m2
- Inhoud ca. 536 m3
- Woonoppervlakte ca. 128 m2
- Bouwjaar ca. 1986
- Rustige kindvriendelijke ligging
- Op steenworp van natuurgebied en dorpskern
- Uitstekende uitvalswegen
- Kadastrale gegevens:
- Gemeente Mierlo;
- sectie F;
- nummer 5631 en 5632;
- groot 3 a 24 ca;
Kenmerken
Overdracht
- Vraagprijs € 499.500 k.k.
- Status Verkocht
- Aanvaarding In overleg
Bouw
- Soort woonhuis Eengezinswoning, Geschakelde Woning
- Soort bouw Bestaande bouw
- Bouwjaar 1986
- Dak Zadeldak met pannen
Oppervlakten en inhoud
- Wonen 128 m²
- Overige inpandige ruimte 16 m²
- Gebouwgebonden buitenruimte 38 m²
- Perceel 324 m²
- Inhoud 536 m³
Indeling
- Aantal kamers 5 (3 slaapkamers)
- Aantal badkamers 2 badkamers
- Badkamervoorzieningen Ligbad, Toilet, Douche, Wastafelmeubel+1
- Aantal woonlagen 3
- Voorzieningen Buitenzonwering, Airconditioning, Sauna+4
Energie
- Verwarming CV-ketel, Vloerverwarming Gedeeltelijk+1
- Warm water CV-ketel(Eigendom)
Buitenruimte
- Ligging Aan rustige weg, In woonwijk
- Tuin Achtertuin – 95 m²
- Achterom Ja
- Berging Aangebouwd Steen – Elektra aanwezig
Garage en parkeren
- Garage Carport, Geen garage
- Parkeren Openbaar parkeren, Op Eigen Terrein
Onderhoud
- Onderhoud binnen Goed
- Onderhoud buiten Goed


